Nestled in the heart of Voula, one of the most exclusive neighborhoods on the Athenian Riviera, this architecturally stunning three-level maisonette offers an unmatched combination of sophisticated minimalism, contemporary elegance, and serene coastal living. With a sprawling private garden, a seamless indoor-outdoor flow, and state-of-the-art amenities, this meticulously crafted residence is the epitome of refined luxury.
⋄ Three-level residence – Thoughtfully designed for optimal space and comfort.
⋄ Expansive private landscaped garden (300 m²) – A lush retreat offering tranquility and relaxation.
⋄ Elegant swimming pool (28 m²) – A seamless extension of the outdoor living space.
⋄ Architectural balconies with sleek, slim-edged designs – Enhancing privacy and sophistication.
LUXURIOUS INTERIOR FEATURES
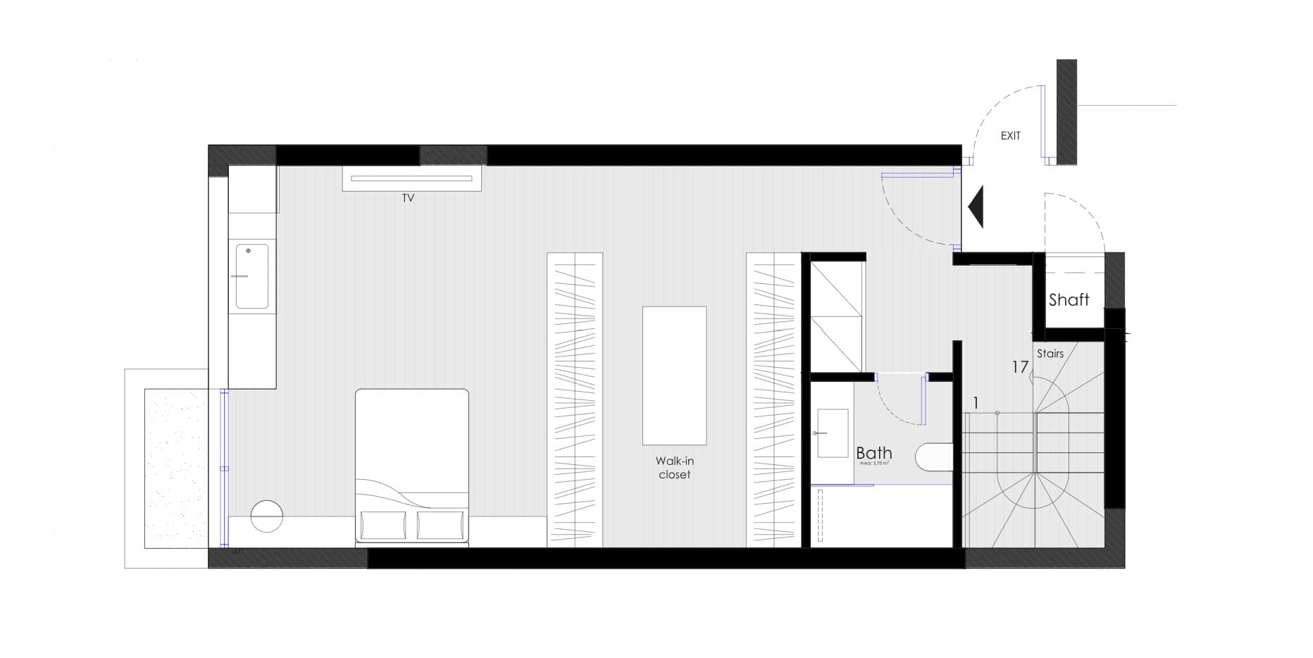
⋄ Three en-suite bedrooms – Spacious, elegantly appointed with built-in wardrobes and serene views.
⋄ Fourth versatile bedroom – Ideal for guests, a home office, or an additional lounge space.
⋄ Four contemporary bathrooms – Featuring minimalist designs, premium fixtures, and refined aesthetics.
⋄ Open-plan living & dining areas – Expansive floor-to-ceiling windows invite natural light, creating a bright and airy ambiance.
⋄ Elegant flooring – Oak wood & oversized tiles (1.20m x 2.60m), elevating the home’s refined aesthetic.
STATE-OF-THE-ART AMENITIES & SMART LIVING
⋄ Two secure underground parking spaces – Equipped with EV charging stations.
⋄ Private storage room – Ensuring organization and convenience.
⋄ Underfloor heating & VRV air-conditioning system – For seamless year-round climate control.
⋄ Hidden indoor & outdoor lighting – Enhancing ambiance with modern sophistication.
⋄ A+ energy efficiency – Featuring photovoltaic systems, 12cm thermal insulation, and sustainable energy solutions.
⋄ Frameless aluminum window systems – Offering unobstructed views and seamless airflow.
⋄ Pre-installed security systems – Discreetly integrated into window and door frames for enhanced safety.
THREE-LEVEL LAYOUT OVERVIEW
BASEMENT (-1) – A PRIVATE & FUNCTIONAL SPACE
⋄ Maid’s room or multi-purpose space, adaptable to your needs.
⋄ Direct access to underground parking & storage, ensuring convenience.
GROUND FLOOR (0) – SEAMLESS INDOOR-OUTDOOR LIVING
⋄ Expansive open-plan living & dining areas, designed for sophisticated entertaining and everyday comfort.
⋄ Direct access to the private garden (300 m²) & swimming pool (28 m²), creating an unmatched outdoor experience.
FIRST FLOOR (+1) – PRIVATE BEDROOM SANCTUARY
⋄ Three en-suite bedrooms, offering privacy, natural light, and breathtaking views.
⋄ Expansive windows, framing the lush garden and serene surroundings.
ARCHITECTURAL EXCELLENCE & MINIMALIST DESIGN
⋄ Striking modern façade – Featuring bold, triangular architectural elements for privacy and aesthetic appeal.
⋄ Diagonal orientation – Optimized for spatial flow and maximum natural light penetration.
⋄ Premium construction materials, ensuring both durability and timeless elegance.
PRESTIGIOUS LOCATION – VOULA, ATHENIAN RIVIERA
Located in one of the most sought-after coastal areas, this residence offers the perfect balance of urban convenience and seaside serenity.
⋄ Steps from parks, wellness centers, and premium leisure activities.
⋄ 10 minutes from Glyfada, a hub of luxury shopping, fine dining, and vibrant nightlife.
⋄ Close to Vouliagmeni, renowned for its exclusive boutiques, stylish cafés, and world-class marina.
SEAMLESS ACCESS TO KEY DESTINATIONS
⋄ 20 min to Athens International Airport.
⋄ 30 min to Piraeus Port, gateway to the Greek Islands.
⋄ Quick access to Cape Sounio & Lavrio Port, perfect for weekend escapes.
A RARE OPPORTUNITY FOR DISCERNING BUYERS
This architectural masterpiece is more than a home—it is a statement of modern luxury, innovation, and elegance. Whether as a primary residence or a prestigious second home, this exquisite maisonette offers an unparalleled lifestyle in one of Athens’ most exclusive coastal locations.
📌 Status: Completed
📩 Private viewings available – Inquire today to secure this one-of-a-kind residence.